Bulevardul Unirii nr. 24
Despre proiect
După decenii de așteptare și stagnare, proiectul Bulevardul Unirii 24 prinde viață prin viziunea și angajamentul companiei BFT. Într-un gest de responsabilitate față de comunitate și patrimoniu, BFT a decis să intre într-un parteneriat cu Episcopia Maramureșului și a Sătmarului pentru a finaliza o construcție emblematică a orașului, care timp de ani de zile a rămas neterminată. Prin acest demers, proiectul nu doar că aduce o clădire modernă și funcțională, ci redă comunității un reper urban, menit să devină un simbol al dezvoltării și viitorului.
Maramures, Romania
Baia Mare
8500 Mp2
2025
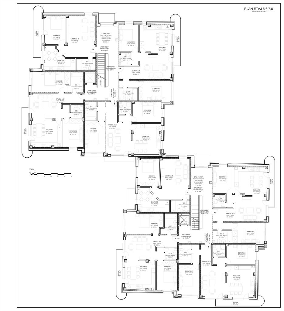
72 apartamente + Birouri
In Dezvoltare, vândut total
Inițial proiectată ca o clădire cu opt etaje, aceasta a fost abandonată la jumătatea drumului, afectând estetica și funcționalitatea zonei. După o atentă analiză și reconsolidare, BFT își asumă misiunea de a finaliza această lucrare, ridicând încă patru etaje și transformând astfel o construcție abandonată într-un simbol al renașterii urbane.
Fidel motoului sau, „Building Trust”, BFT s-a asigurat că acest proiect este realizat la cele mai înalte standarde de calitate. Apartamentele sunt proiectate inteligent pentru a maximiza confortul și funcționalitatea, oferind în același timp unele dintre cele mai impresionante priveliști din oraș. Acest ansamblu nu este doar un pas înainte pentru rezidenți, ci și un catalizator pentru dezvoltarea economică și socială a întregii comunități.

Mai mult decât un simplu proiect imobiliar, Bulevardul unirii 24 este un exemplu clar al valorilor promovate de BFT. Compania crede cu tărie în importanța de a da înapoi comunității și de a îmbunătăți calitatea vieții locuitorilor orașului. În acest spirit, pe lângă finalizarea blocului de apartamente, BFT a construit și o cantină publică, gestionată de Biserică, destinată sprijinirii persoanelor aflate în dificultate. Astfel, proiectul va întări legăturile sociale.

Planurile proiectului
